Villa bouwgrond in een prachtige omgeving
- Vraagprijs €159.000
- Vraagprijs €159.000
Video
Omschrijving
Enkele honderden meters over de grens met Vlaanderen, nabij het gezellige Waalse dorpje Ghoy, ligt deze grote bouwgrond met prachtige verzichten (dronevideo beschikbaar via het virtueel bezoek of op de website van Vastgoed Lammers). Op een tiental minuten met de wagen bent u nabij het stadscentrum van Geraardsbergen en het centrum van Lessen is amper 5 minuten. Ook is er een vlotte verbinding met de A429/A8 richting Brussel.
Voor de grond is er een diepsonderingsstudie beschikbaar alsook is er een recent positief stedenbouwkundig attest (certificat d ’urbanisme N°2) afgeleverd door de gemeente.
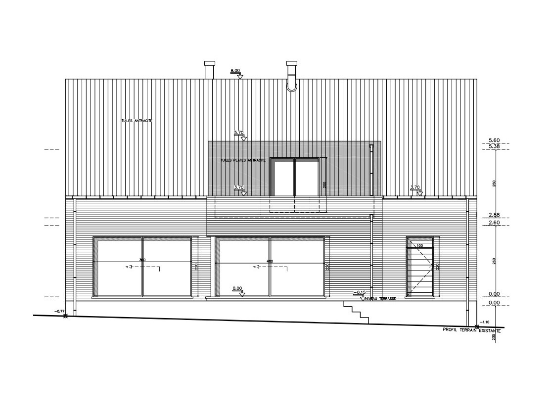
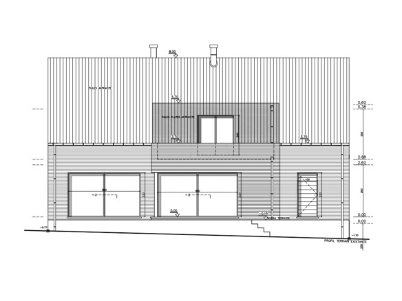
Bovendien beschikken we nog steeds over de oorspronkelijke plannen, deze kunnen u een goed beeld geven over de mogelijkheden.
Adres
Open met Google Maps-
Adres: Mon passage
-
Stad: Ghoy
-
Provincie / Regio: Henegouwen
-
Postcode: 7863
-
Land: België
Details
Updated on maart 11, 2025 at 10:06 am-
Prijs Vraagprijs €159.000
-
Bruikbare vloeropp. 1795 ca
-
Perceel 1795 m²
-
Bouwjaar 2008
-
Type Bouwgrond
Wettelijk verplichte informatie
-
Stedenbouwkundige bestemming Ag
-
Omgevingsvergunning stedenbouwkundige handelingen nee
-
Stedenbouwkundig attest positief d.d. 25-7-2022
-
Omgevingsvergunning verkavelen gronden nee
-
Recht van voorkoop nee
-
Overstromingsgevoelig gebied nee
-
Risicozone overstromingen nee
-
Beschermd erfgoed nee
-
Diepsondering beschikbaar
-
Regenwater ja, 10.000 liter
-
Kadastraal inkomen 13 euro
-
Erfdienstbaarheden nee
-
Bouwplannen beschikbaar
Hypotheekberekening
-
Eigen middelen
-
Te lenen bedrag
-
Maandelijkse aflossing
