Leuke projectgrond te Everbeek-boven
- Vraagprijs €179.000
- Vraagprijs €179.000
Video
Omschrijving
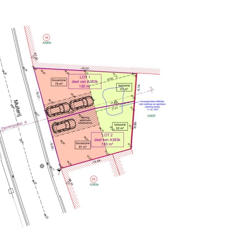
Aan de dorpskern van Everbeek-Boven treft u deze rustig en landelijk gelegen bouwgrond.
De bouwgrond beschikt over een verkavelingsvergunning voor het oprichten van twee gesloten bebouwingen (aanplakkingstermijn lopende). Er is een voorgevelbreedte van 10 meter (LOT1) en 9 meter (LOT2). De bouwzone mag maximaal benut worden. Bouwdiepte voor gelijkvloers en verdieping van maximum 9 meter. Kamers onder het dak toegelaten. Vrij materiaalgebruik, inpasbaar in de omgeving. Voor meer gedetailleerde inlichtingen gelieve de makelaar te contacteren.
Wilt u meer informatie? Neem zeker contact op met Jonathan via 0479 10 79 69 of stuur een e-mail naar jonathan@vastgoedlammers.be.
Eigendomsdocumenten
Adres
Open met Google Maps-
Adres: Muiterij 21
-
Stad: Brakel
-
Provincie / Regio: Oost-Vlaanderen
-
Postcode: 9660
-
Regio: Vlaamse Ardennen
-
Land: België
Details
Updated on april 14, 2026 at 7:24 am-
Prijs Vraagprijs €179.000
-
Bruikbare vloeropp. 290 ca
-
Perceel 290 m²
-
Oriëntatie tuin noorden
-
Type Bouwgrond
Wettelijk verplichte informatie
-
Stedenbouwkundige bestemming woongebied met landelijk karakter
-
Omgevingsvergunning stedenbouwkundige handelingen ja
-
Omgevingsvergunning verkavelen gronden nee
-
Recht van voorkoop nee
-
Risicozone overstromingen nee
-
Erfdienstbaarheden nee
-
Beschermd erfgoed nee
-
Risicozone voor overstromingen nee
-
Overstromingsrapport - Perceelscore: A: geen overstroming gemodelleerd
-
Overstromingsrapport - Gebouwscore: onbekend
-
Perceelnummer afdeling 7, Everbeek, sectie A, nummer 383/k
-
Maatregelenregister voor overdracht in aanvraag
Hypotheekberekening
-
Eigen middelen
-
Te lenen bedrag
-
Maandelijkse aflossing
